1511 E Moon Vista St, Apache Junction, AZ 85119
Toggle Navigation
Images
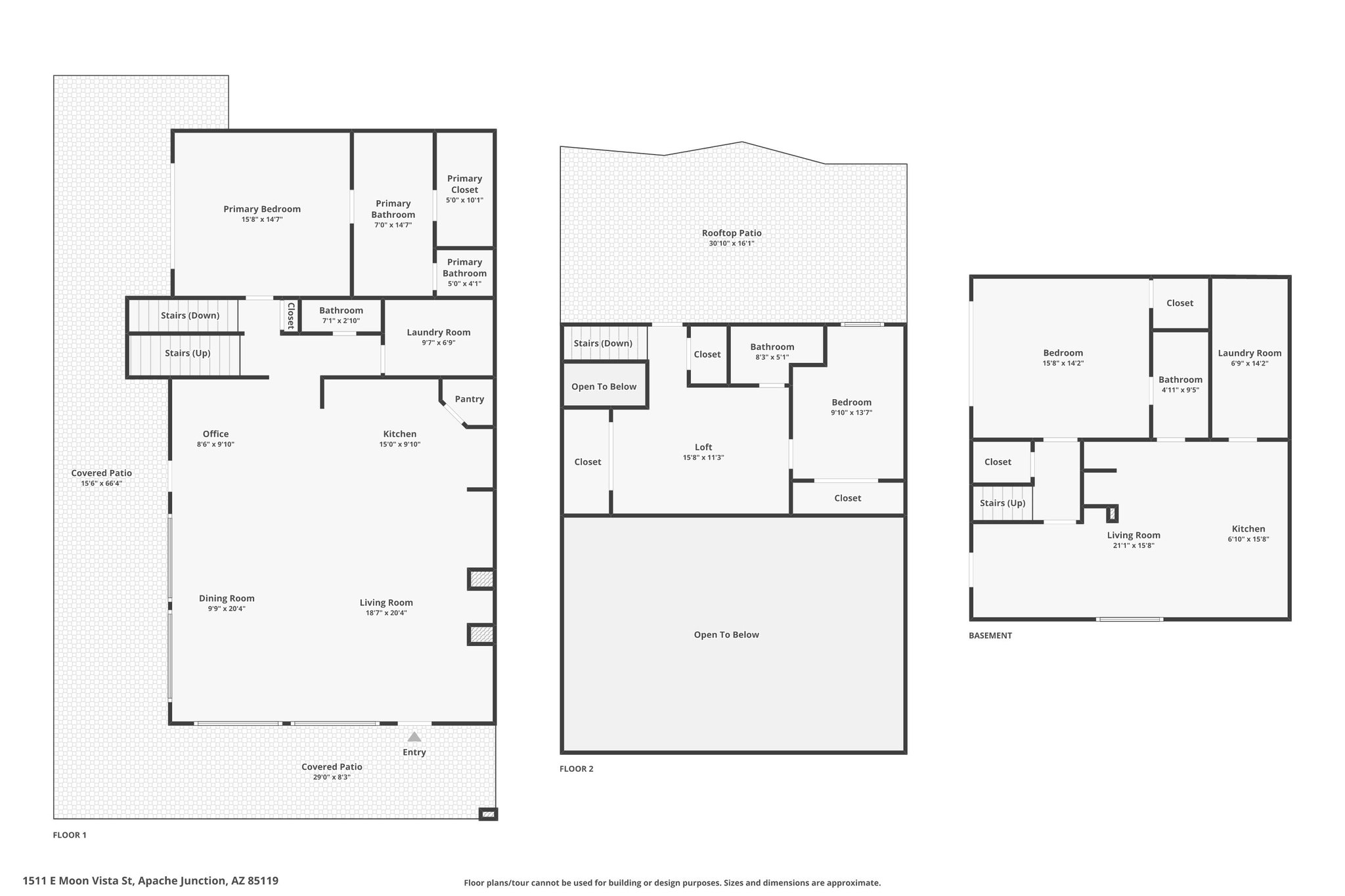
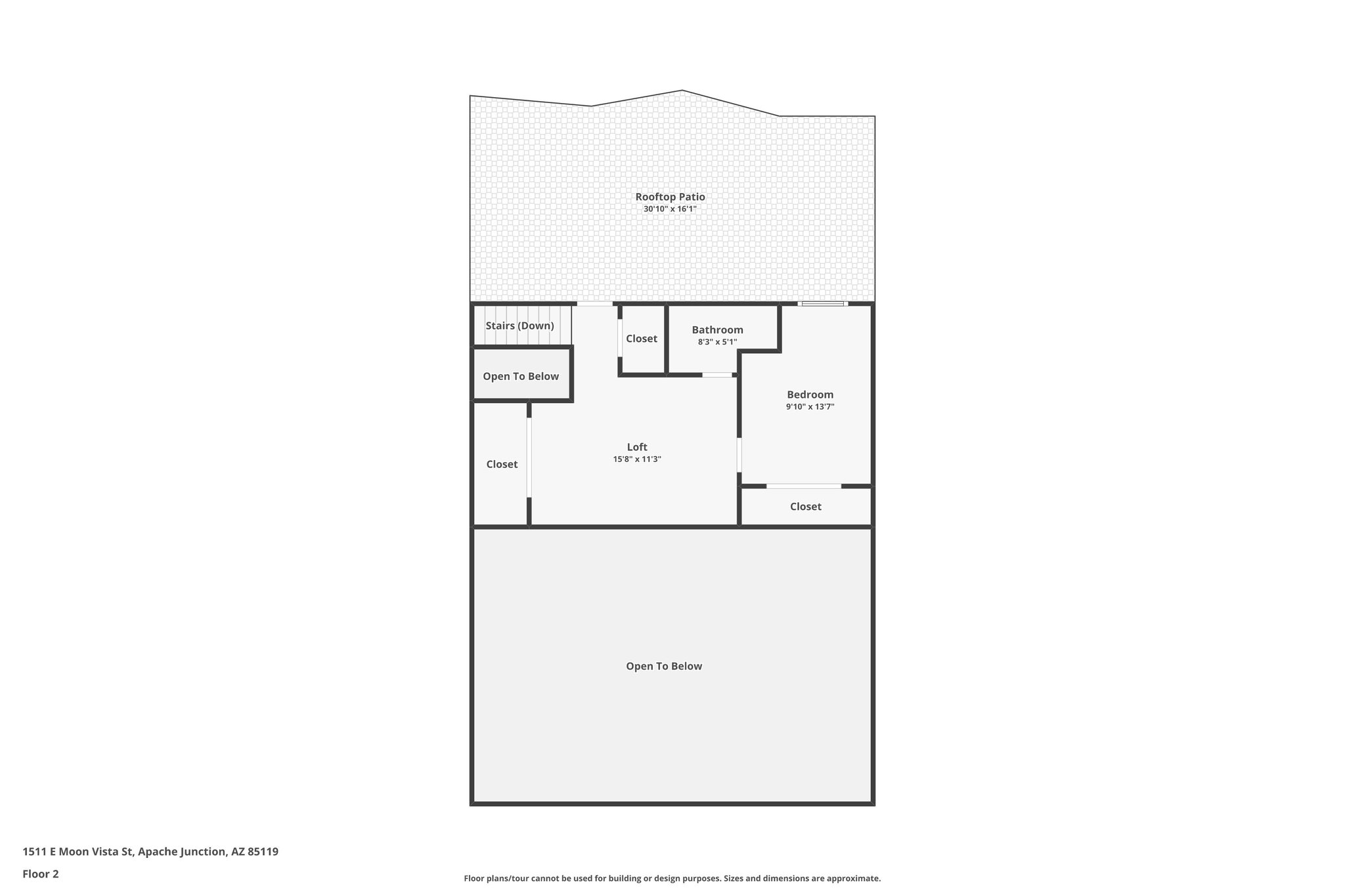
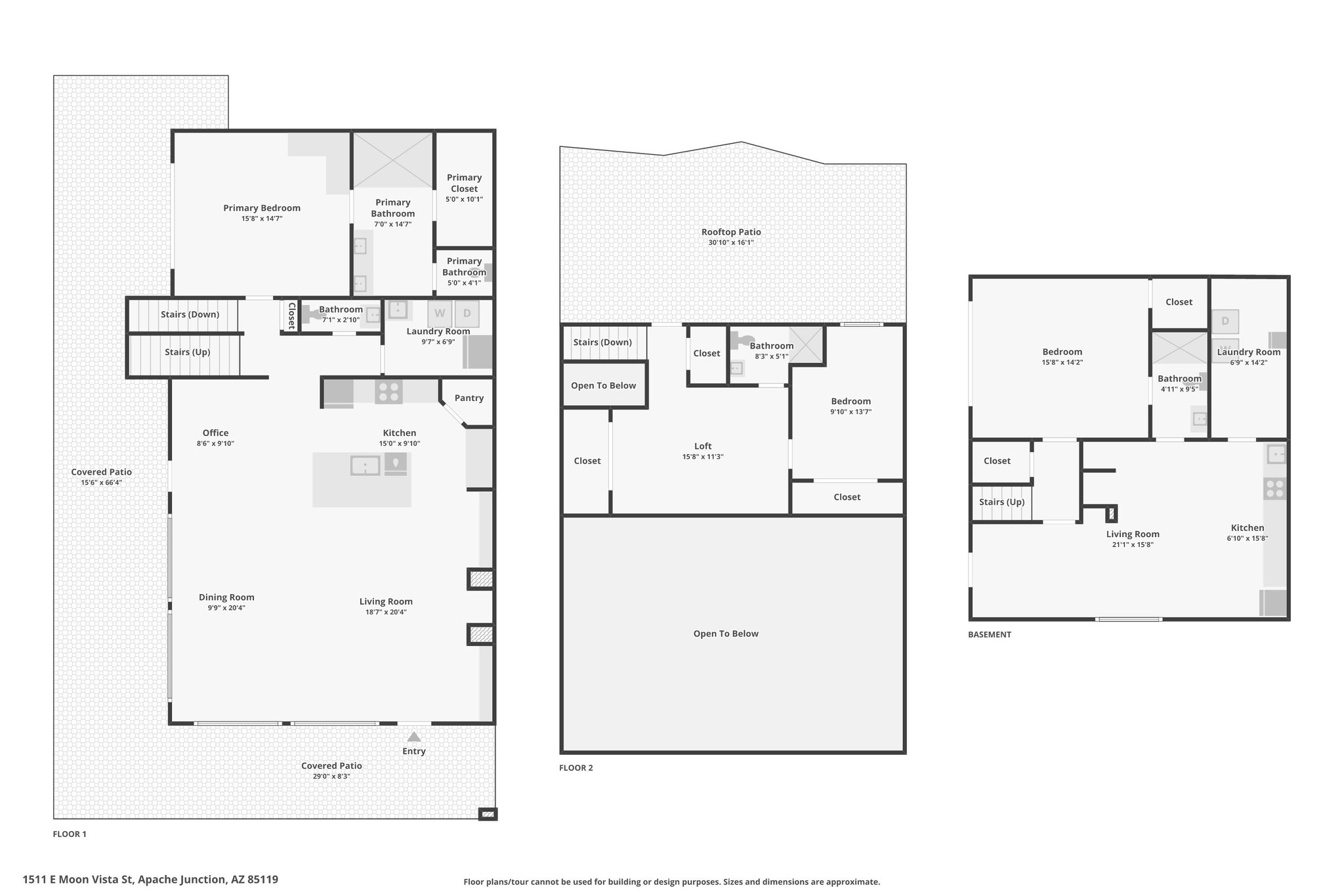
Floor Plans
3D Tour
Map
1511 E Moon Vista St
Apache Junction, AZ 85119
Scroll to Content
Images
Slideshow
Photo Grid
Hide
Previous
Next
Show more
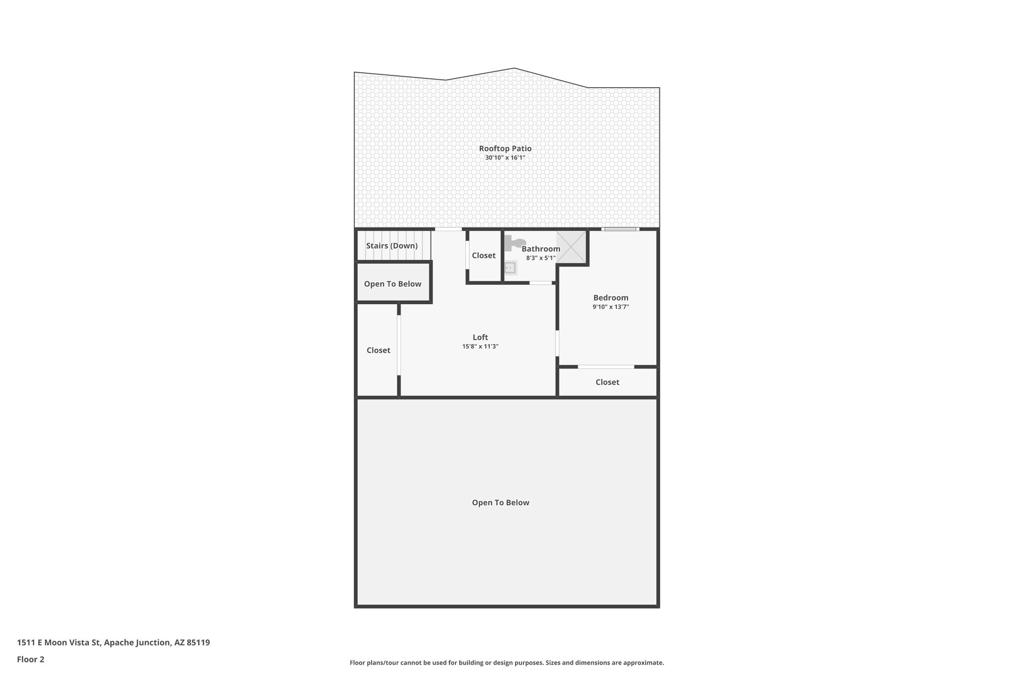
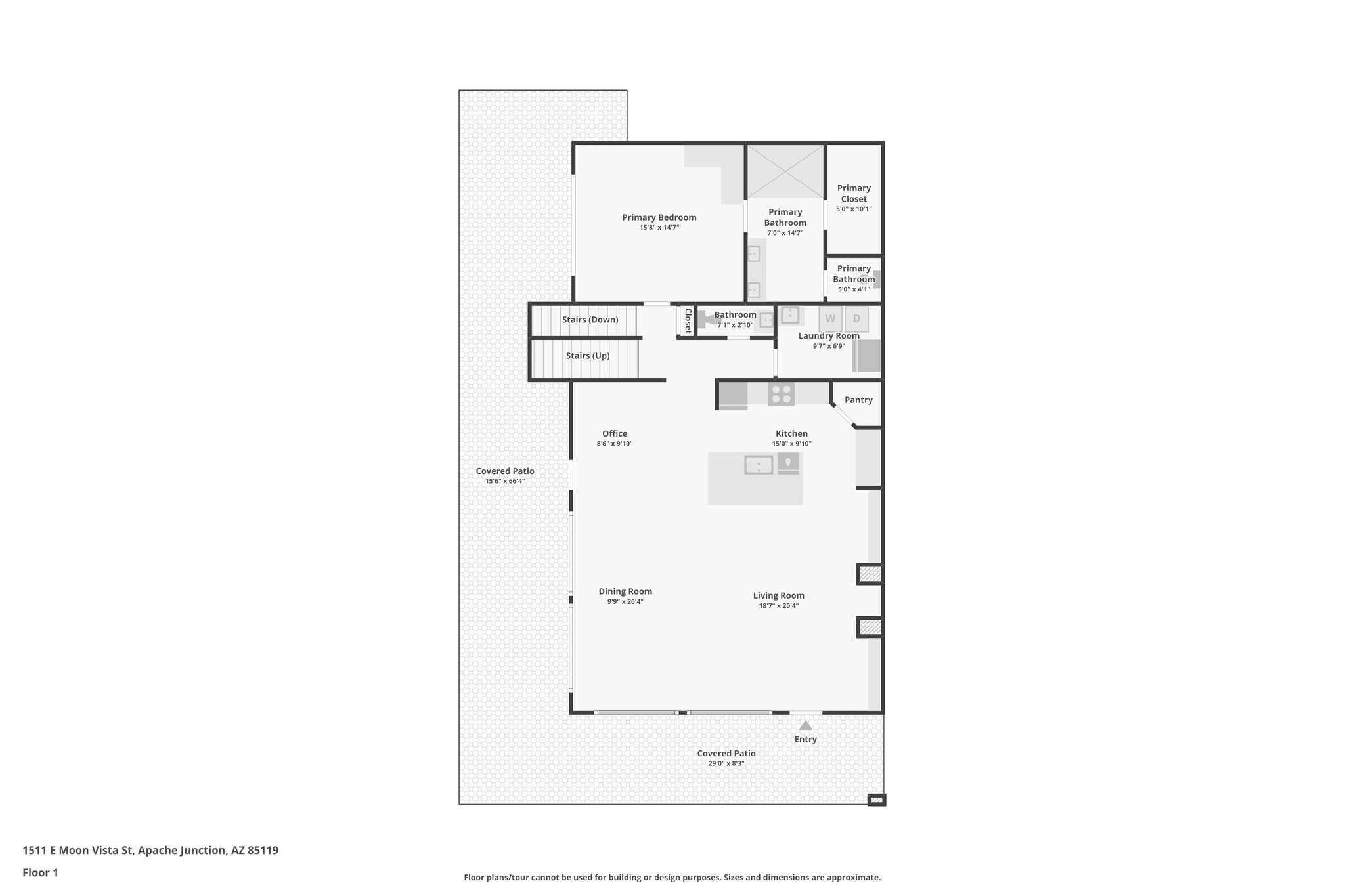
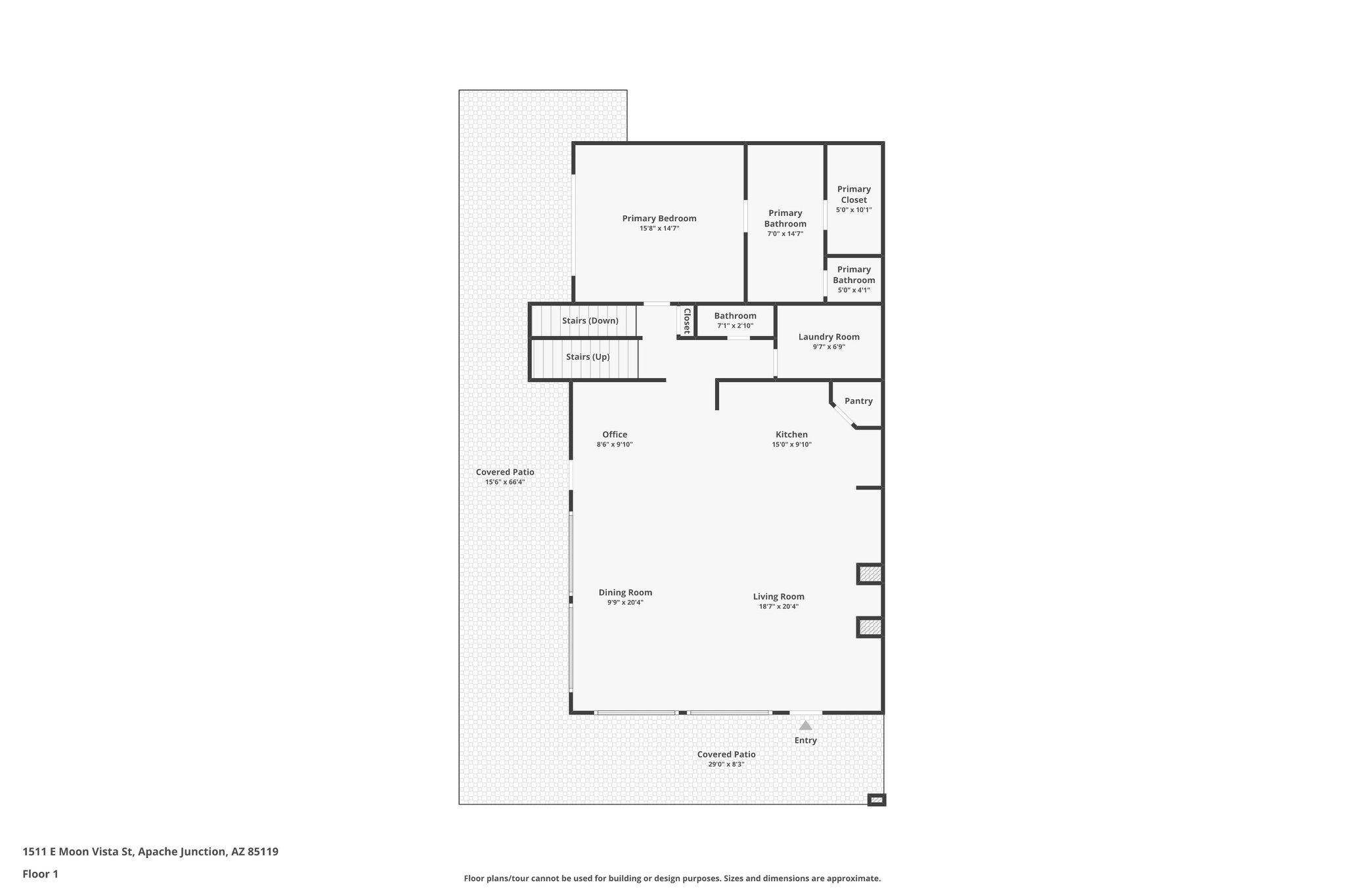
Floor Plans
Slideshow
Photo Grid
Hide
Previous
Next
3D Tour