1462 Starlight Canyon Ave, Las Vegas, NV 89183
Toggle Navigation
Images
Floor Plans
Map
1462 Starlight Canyon Ave
Las Vegas, NV 89183
Scroll to Content
Images
Slideshow
Photo Grid
Hide
Previous
Next
Show more
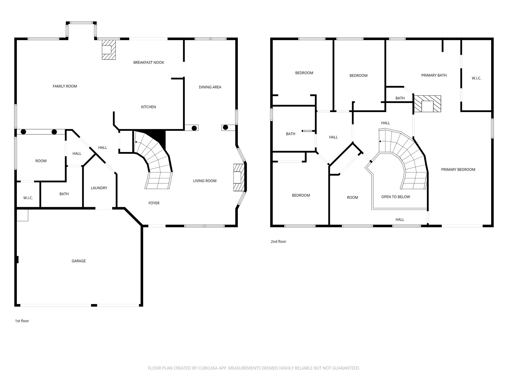
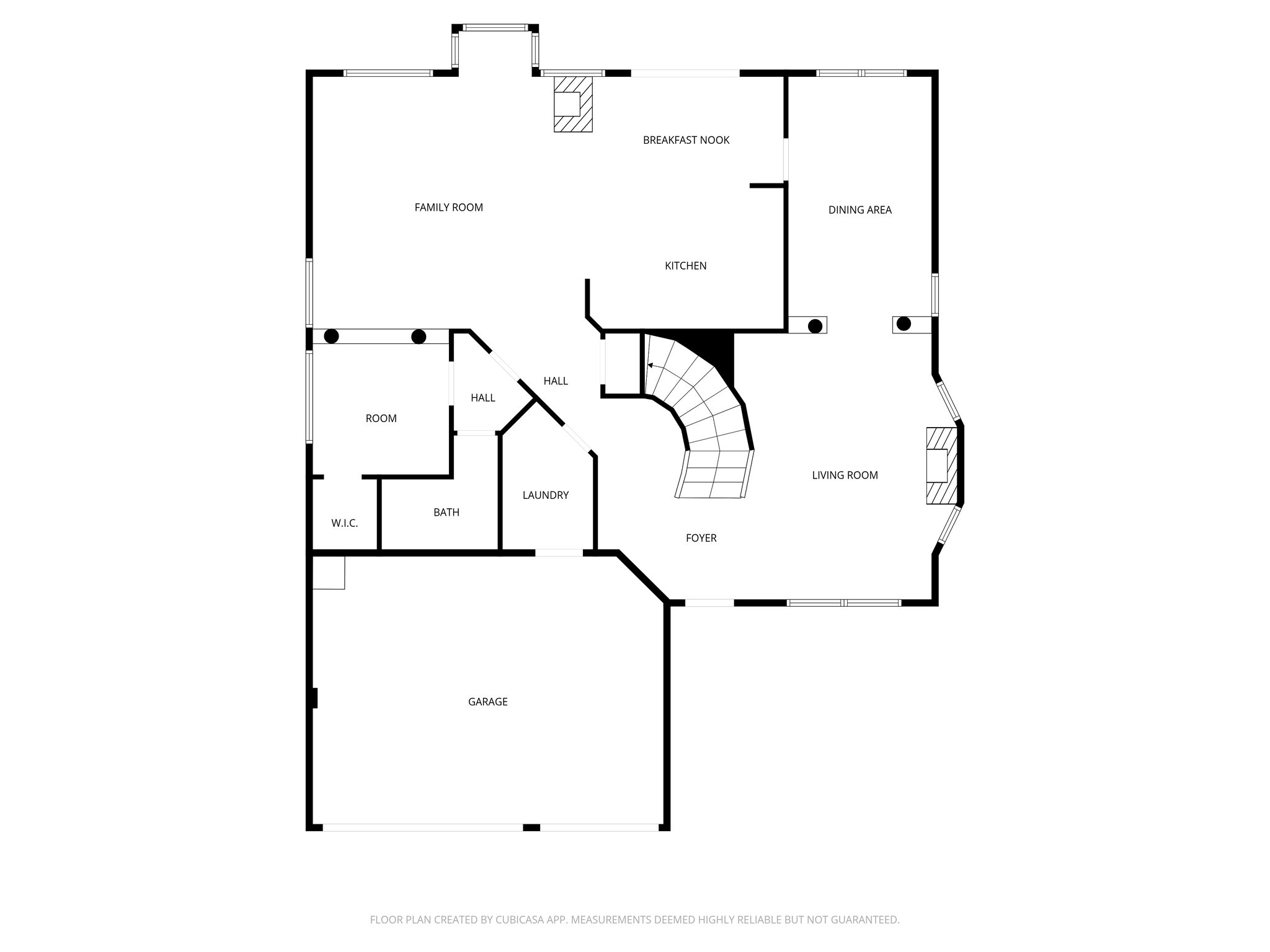
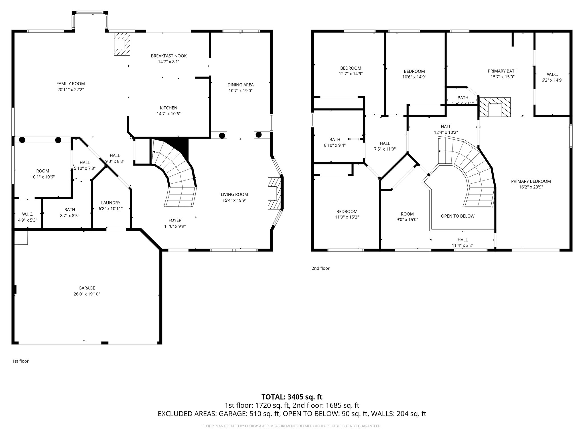
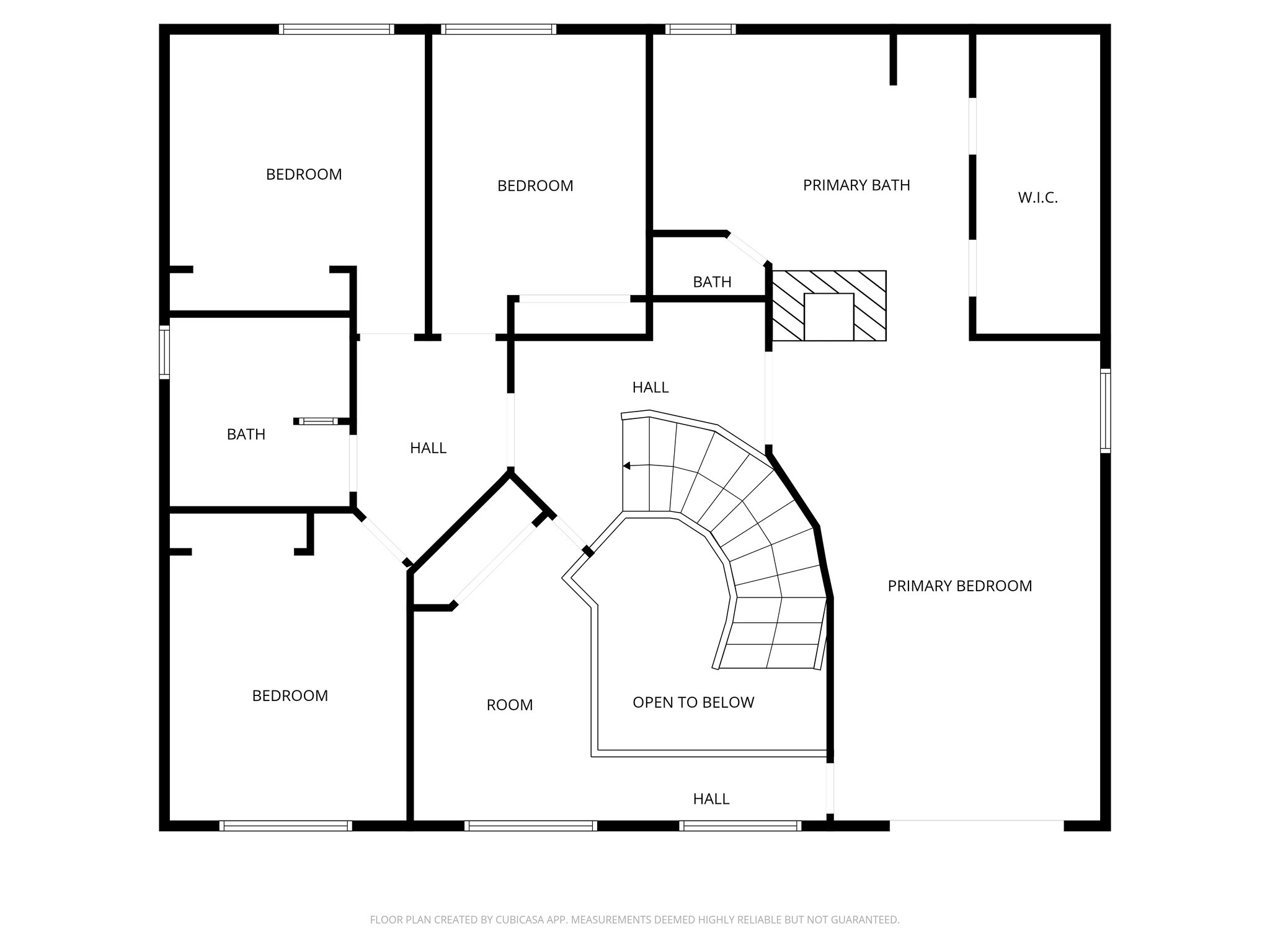
Floor Plans
Slideshow
Photo Grid
Hide
Previous
Next